5 locali in affitto

Napoli, Via giulio palermo - Vomero Alto
€ 400 / mese
5 locali 5 locali
135 Mq 135 Mq
2 bagni 2 bagni

5 locali in affitto

Napoli, Via giulio palermo - Vomero Alto

Descrizione annuncio

CAMERA PER STUDENTESSA.

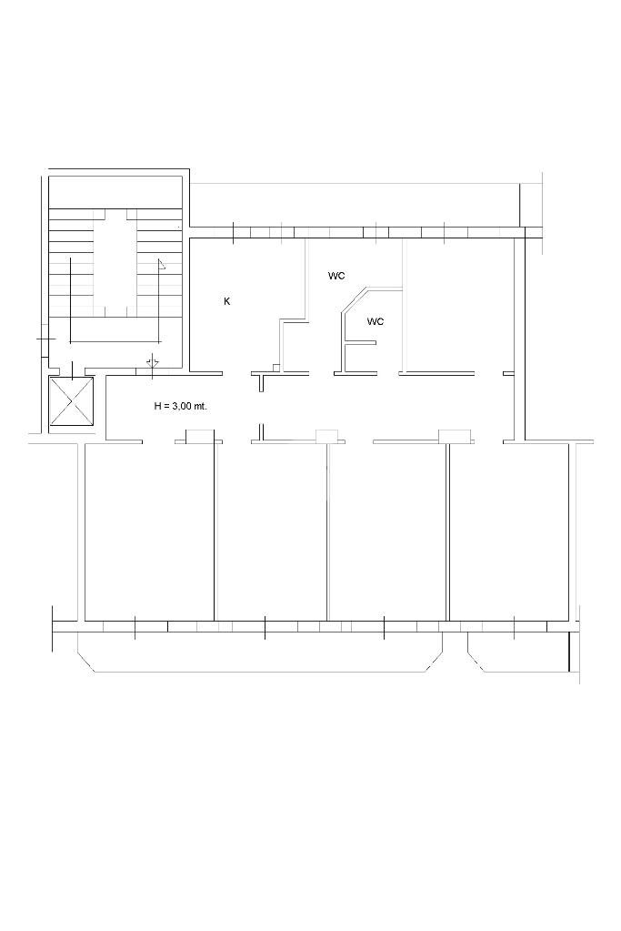
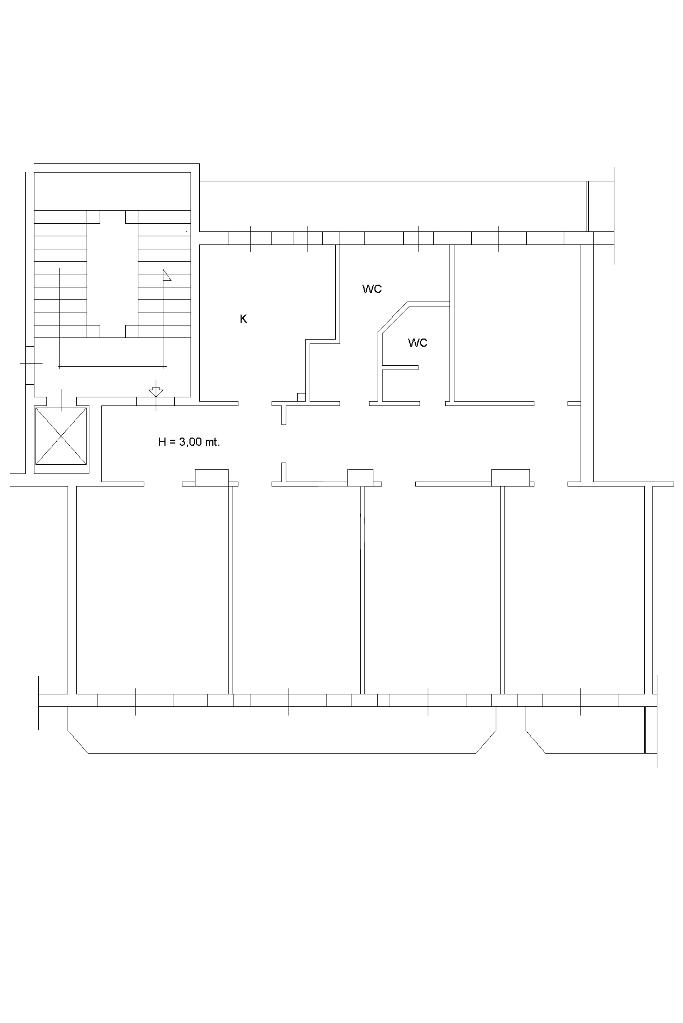
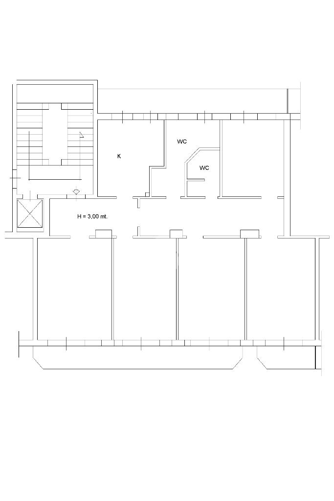
Nel cuore del quartiere Vomero Alto, a Napoli, si trova un ampio appartamento situato in via Giulio Palermo. Questa soluzione abitativa, ideale per chi cerca una sistemazione comoda e ben collegata, offre una camera singola perfetta per una studentessa. L'appartamento, di 135 mq, è stato ristrutturato per garantire comfort e funzionalità. Situato al piano medio l'immobile si distingue per la sua disposizione spaziosa, composta da cinque locali e doppi accessori.

La posizione strategica consente di raggiungere facilmente i principali servizi e le aree di interesse del quartiere.

La camera sarà disponibile a partire dalla seconda metà del mese di Dicembre.

Per qualsiasi informazione e/o per fissare un appuntamento, contattare il nostro ufficio TECNOCASA di Via Onofrio Fragnito n. 75 - Napoli - al numero telefonico/whatsapp 081 5464616 oppure all'indirizzo di posta elettronica nacl4

UN NOSTRO AGENTE SARA' PRONTO A RISPONDERE ALLE VOSTRE DOMANDE CON PROFESSIONALITA' E CORTESIA.

Se dovete vendere, permutare o affittare il vostro immobile chiamateci allo 081.546.46.16 per una VALUTAZIONE commerciale senza impegno. Nessun compenso è dovuto per il servizio di valutazione.


Presso la nostra agenzia Tecnocasa, è possibile su richiesta, grazie ai professionisti della società di mediazione creditizia del gruppo Kiron , ricevere una consulenza gratuita ed accedere ad un'ampia gamma di prodotti creditizi e assicurativi come:
-Mutui prima, seconda casa e ristrutturazione
-Sostituzione o Surroga del Mutuo
-Prestiti Personali
-Cessioni del Quinto dello Stipendio o Pensione
-Consolidamento Debiti
-Prodotti Assicurativi per la Famiglia, ramo Danni e Vita.
LA CONSULENZA È GRATUITA.

Mostra tutto

Nelle vicinanze

Trasporto pubblico Trasporto pubblico
Rione Alto
Rione Alto
70 m
Policlinico
Policlinico
460 m
Piave
Piave
2,4 Km
Napoli Montesanto
Napoli Montesanto
2,5 Km
Semmola - Ospedale Pascale
Semmola - Ospedale Pascale
70 m
Scuole Scuole
13° Circolo Didattico Maestro Ignazio di Loyola
450 m
Scuola Media Cesare Pavese
470 m
Liceo Scientifico Elio Vittorini
550 m
Suore Betlemiti
730 m
Scuole
800 m
Farmacia Farmacia
Farmacia Garrone
400 m
Farmacia Orlandi
840 m
Farmacia al Policlinico
850 m
Municinò
880 m
Farmacia Laterza
1,0 Km
Ospedali Ospedali
IRCCS Fondazione Pascale - Day Hospital
110 m
IRCCS Fondazione Pascale - Degenze
190 m
IRCCS Fondazione Pascale - Palazzina scientifica
200 m
ospedale Antonio Cardarelli
510 m
Azienda Ospedaliera Universitaria Federico II
1,0 Km
Supermercati Supermercati
Sole 365
70 m
Carrefour Express
170 m
Supermercati
820 m
Superò
880 m
Conad
1,1 Km
Negozi Negozi
Pasticceria Settembre
720 m
La Focaccia dal 1962
1,1 Km
Alysa Borse e Accessori
1,1 Km
Grieco
1,8 Km
Negozi
1,8 Km
Bar Bar
Bar Maria
1,5 Km
El bocadito
1,6 Km
Caffetteria Bernini
1,7 Km
Bar Michelangelo
1,8 Km
Doc Pub
1,8 Km
Ristoranti Ristoranti
La Brace
350 m
Il Cavallino d'Oro - Ristorante Pizzeria
410 m
Siani
880 m
Pizzeria Da Michele
970 m
Rosticceria La Padella
1,2 Km
Mostra tutto

Caratteristiche

Rif.:
61139207
Piano:
3 di 7 con ascensore (Piano medio)
Balconi:
2
Camere da letto:
4
Arredamento:
Completo
Condizionamento:
Autonomo
Mostra tutto
Prezzo Prezzo
€ 400 / mese
Spese annue Spese annue
€ 600

Classe Energetica

G
G
G
G
G
G
G
G
G
EP globale non rinnovabile:
175.00 kW h/m² anno
EP globale rinnovabile:
175.00 kW h/m² anno
EP invernale del fabbricato:
EP estiva del fabbricato:
Anno di costruzione:
1967
Riscaldamento:
Centralizzato
Tipo impianto:
A radiatori
Tipo alimentazione:
Metano

Ti interessa visionare l'immobile?

Fissa un appuntamento  Fissa un appuntamento

Richiedi informazioni

Clicca su Leggi per aprire l'informativa
* Questi campi sono obbligatori
Affiliato
Fra Immobili Srl
Via Onofrio Fragnito, 75 80131 Napoli (NA)
Via Onofrio Fragnito, 75 80131 Napoli (NA)
Zona: Vomero Alto
Mostra su mappa
Orari: lunedì - venerdì: 9:00 - 20:00; sabato: 9:00 - 18:00; domenica: 10:00 - 12:30.
Affiliato
Fra Immobili Srl
Via Onofrio Fragnito, 75 80131 Napoli (NA)

2026 Tecnocasa Franchising S.p.A. - P. IVA 08365160152 - Via Monte Bianco 60/A 20089 Rozzano (MI). Ogni agenzia ha un proprio titolare ed è autonoma. Privacy policy | Policy utilizzo | Cookie policy